Viviendas en Llanes

El edificio, situado en el centro de Llanes, cuenta con 21 viviendas de diferentes tipologías, para poder adaptarse a las distintas necesidades de los futuros compradores.
Las viviendas varían en superficie, distribuyéndose en apartamentos de 1, 2 y 3 dormitorios.

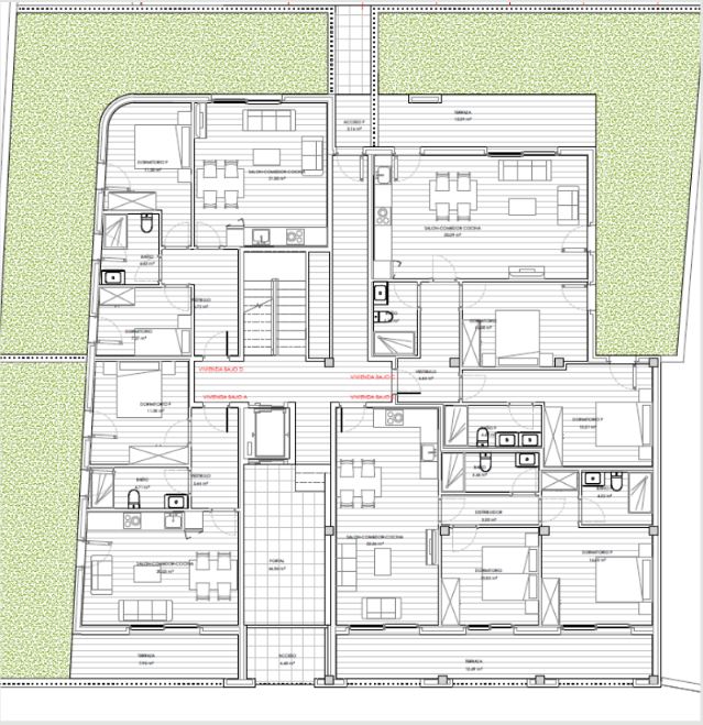
En la planta Baja, nos encontramos con 4 viviendas. Todas las viviendas cuenta con terraza, pero además tres de ellas, cuentan con zona verde comunitaria de uso exclusivo para los propietarios de la vivienda.
Plano de Planta Baja

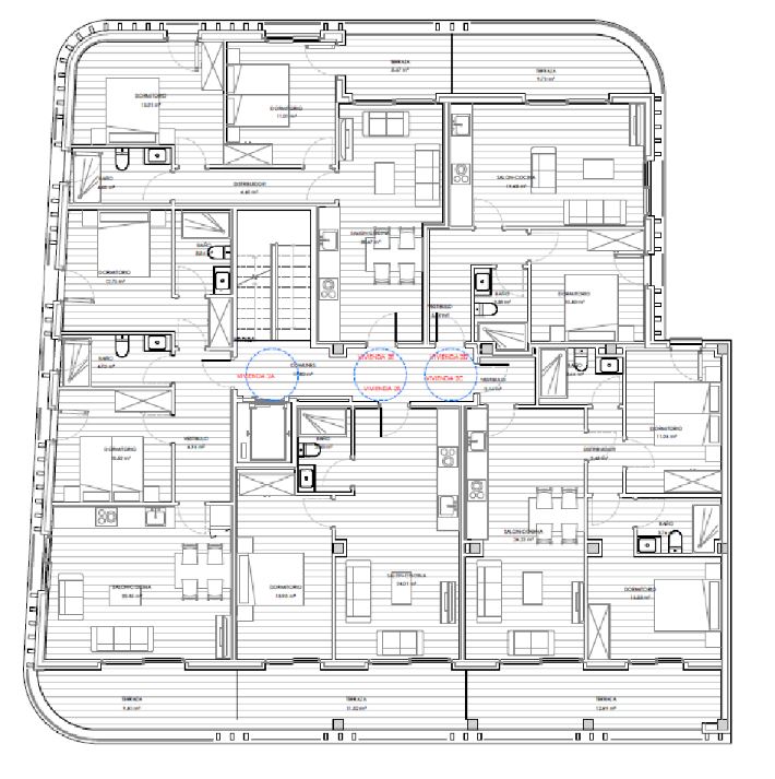
La planta tipo del edificio, se desarrolla con cinco viviendas.
Todas las viviendas cuentan con su propia terraza.
Plano de Planta Tipo

La planta ático es sin duda, el lugar estrella del edificio, debido a la singularidad de su ubicación, así como a las vistas que nos ofrece esta planta.
En esta planta, hemos creado dos únicas viviendas, que satisfarán los gustos y necesidades de los clientes más exquisitos.
Por un lado tenemos una gran vivienda de tres habitaciones y salón cocina, que cuenta con una gran terraza perimetral con orientación Sur.
Por otro lado, tenemos una coqueta vivienda de dos dormitorios, dos baños, salón y cocina, que igualmente cuenta con terraza perimetral, con orientación Norte y este.